Je vien tout juste de rentré en Seconde que deja j'ai un devoir maison a rendre pour demain !!
Voici l'enoncé du devoir maison :
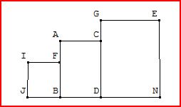
Enigme 2 :
Le coté de chaque carré mesure 2 cm de plus que le precedent.
L'aire de cette figue est de 83 cm²
(cette figure n'est pas en vrai grandeur)
Desinner la figure en vrai grandeur.
Alor voila se que j'ai fait.
Sur la figure qui est attache au message je met x comme valeur d'un cote du petit carré.
Donc on je trouve :
x² + (x+2)² + (x+4)² = 83
Je developpe tout sa grace au identité remarquable et je trouve :
3x² + 12X + 20 = 83
Se qui donne :
3x² + 12x = 63
